Byt 3+1 ve Svitavách
k pronájmu na ulici
Olbrachtova
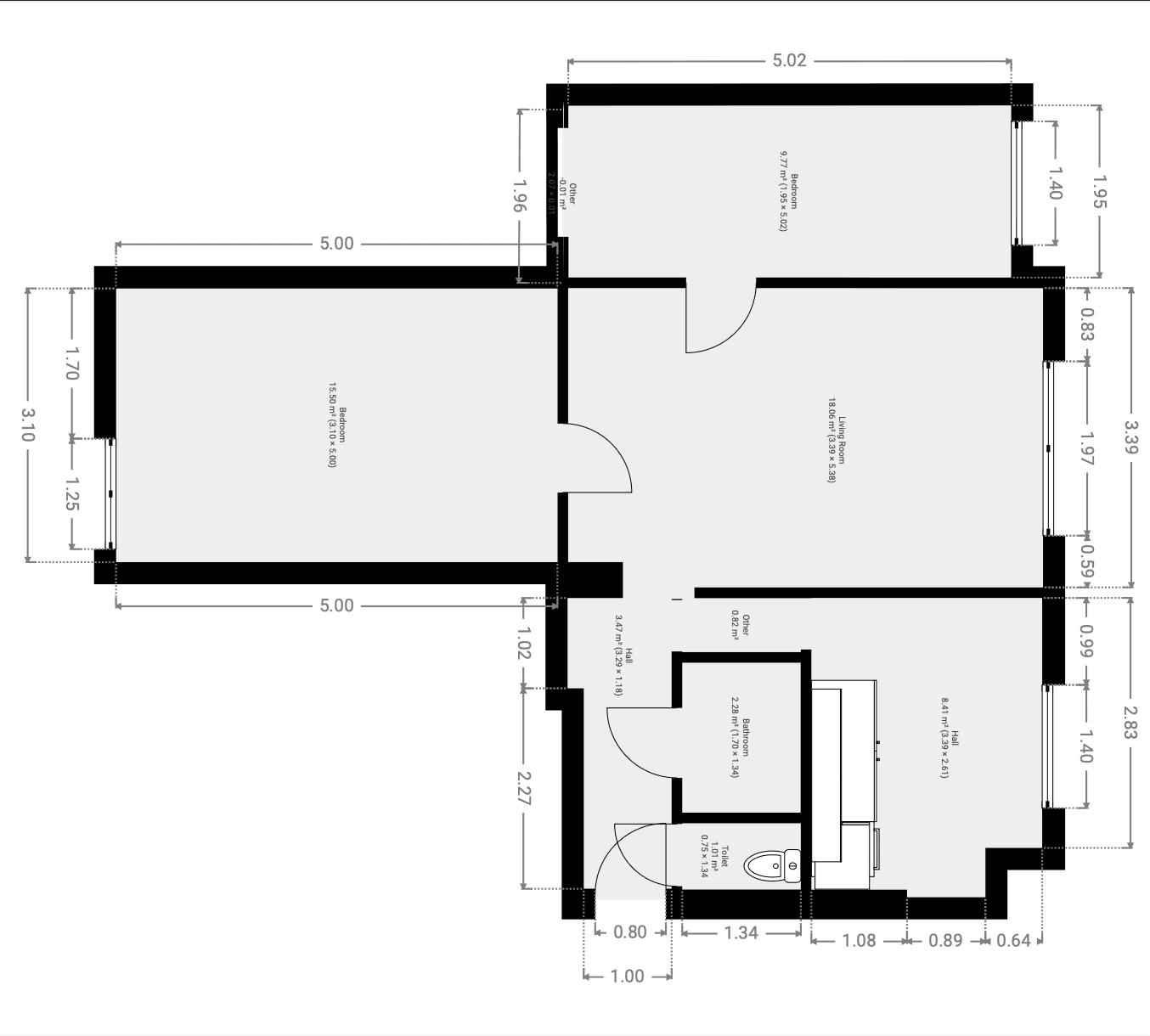
Byt 3+1 o podlahové ploše 63,6 m², který vás zaujme svou praktičností i příjemnou atmosférou.
Byt je dispozičně řešený velmi chytře. Kuchyňská linka je připravena na vaření, koupelna má sprchový kout a samozřejmostí je samostatné WC. Velký průchozí pokoj o výměře 19,1 m² se přímo nabízí jako obývací část, kde se bude odehrávat rodinný život. Dva neprůchozí pokoje o velikosti 16,1 m² a 9,3 m² poslouží jako ložnice, dětský pokoj nebo pracovna. V chodbě oceníte vestavěné skříně, které ušetří spoustu místa.
K užívání je i sklep, společná kočárkárna a kolárna, takže úložný prostor nebude problém. Dům má plastová okna s izolačním dvousklem. Nedisponuje výtahem. Jádro bytu má nově elektřinu v mědi, pokoje jsou v původním stavu.
Budu se těšit na osobní prohlídku.
dispozice
celková plocha
2 m²
sklep
Zaujala vás
tato nemovitost?
její prohlídku.
Lokalita
a mapa
A pokud máte rádi přírodu, kousek od domu je rybník Rosnička, kam můžete vyrazit na procházku. Za domem navíc najdete zeleň, kde si bezpečně pohrají vaše děti.
Svitavy jsou příjemné menší město s kompletní občanskou vybaveností. Najdete tu obchody, školy, školky, nemocnici, sportoviště, kulturní centrum i restaurace. Vše je snadno dostupné a díky velikosti města máte většinu věcí doslova pár minut od sebe.
Cena nemovitosti
Uvedená cena je za měsíční nájemné K nájemnému je nutné připočíst měsíční zálohy na energie. Provize činí 17.910,- Kč včetně DPH.
Uvedené rozměry jsou orientační. Veškeré zveřejněné údaje obsažené v tomto inzerátu mají pouze informativní charakter a nejsou nabídkou ve smyslu § 1731 nebo § 1732 občanského zákoníku, ani se nejedná o veřejný příslib dle § 1733 občanského zákoníku. Z této nabídky tak nikomu nevzniká nárok na uzavření smlouvy.
Hypoteční
kalkulačka
Jan Čermák není zprostředkovatelem hypotečních úvěrů.
Jan Čermák není zprostředkovatelem hypotečních úvěrů.













